
精致有品位,名匠裝飾設計師巧妙利用了莫蘭迪色對整個空間進行設計,讓色彩與整個空間搭配構筑出高級感,這是一套套70平米的小戶型設計,房屋空間結構做了許多改動,由百看不膩的莫蘭迪色系搭配,看起來讓人愛不釋手,還特別實用,大家一起來圍觀一下吧。
設計風格:北歐輕奢
住宅面積:70m2
設計門店:大理名匠裝飾

大理白族自治州100平米以下三居北歐風格裝修效果圖

大理白族自治州100平米以下三居北歐風格裝修效果圖
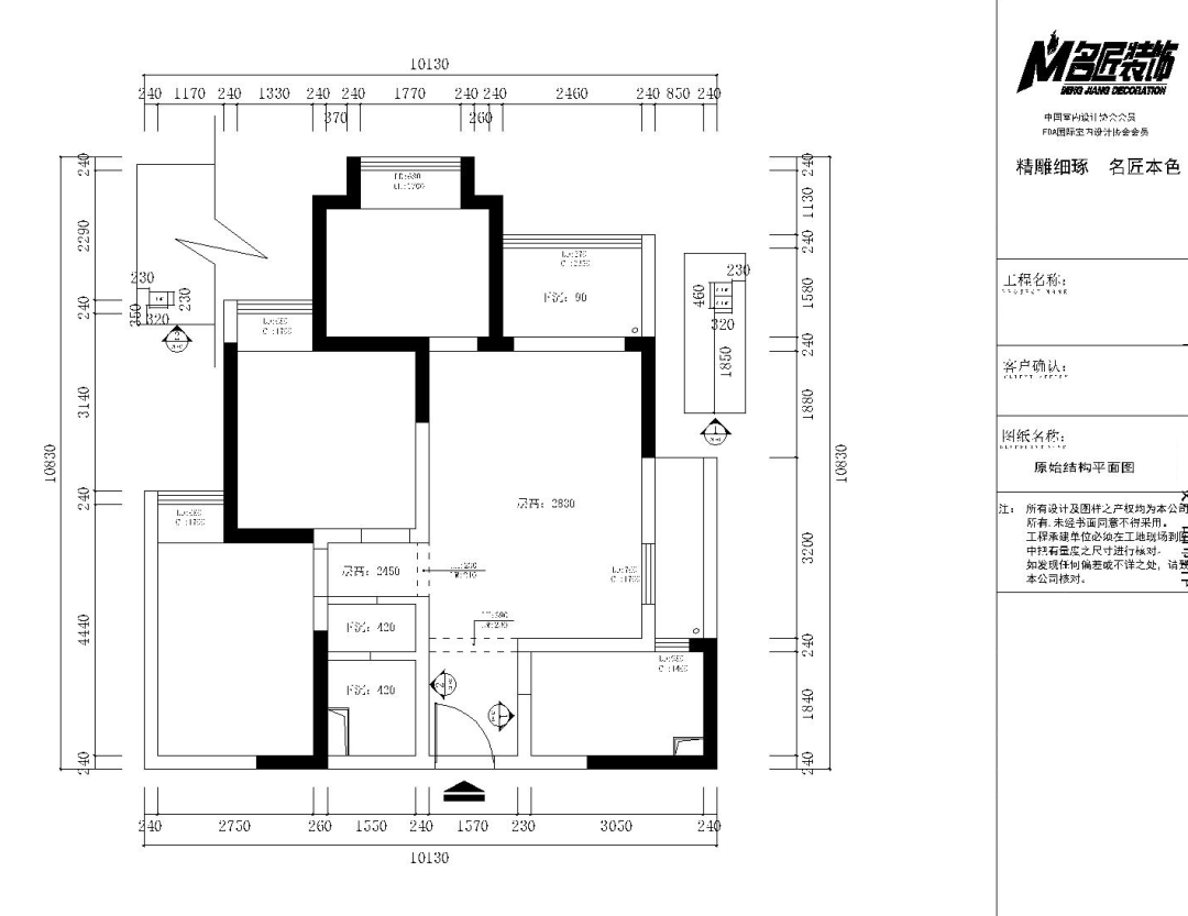
小戶型室內裝修-原始結構圖

大理白族自治州100平米以下三居北歐風格裝修效果圖
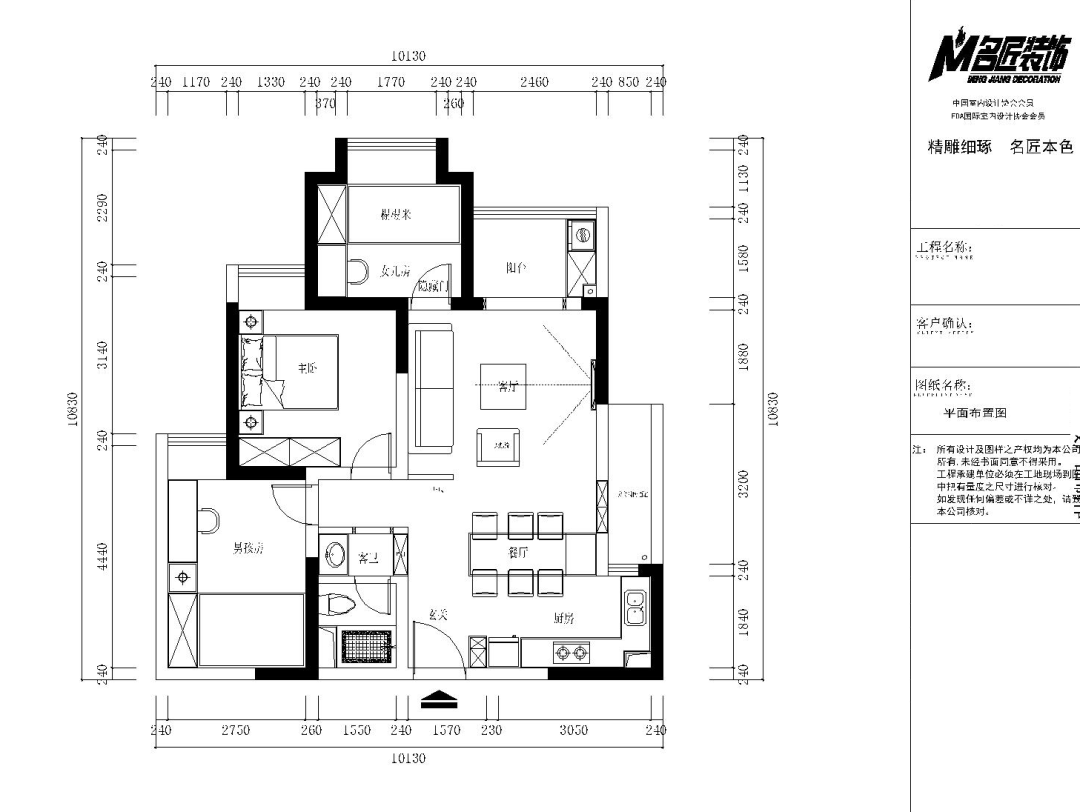
小戶型室內裝修-平面布置圖

大理白族自治州100平米以下三居北歐風格裝修效果圖
小戶型室內玄關裝修,進入玄關,設計師將入戶處原本封閉的空間墻面拆除,以可容納六人用餐的大理石吧臺作為代替,打造成方便交流的開放式西廚餐廳。

大理白族自治州100平米以下三居北歐風格裝修效果圖
小戶型室內餐廳裝修,懸空式酒柜提高了空間利用率,玻璃柜門加上內置燈光設計,讓整個餐廚區充滿小資情調。地磚/吧臺的大理石質感、高腳椅細長的黃銅凳腿、分子吊燈晶瑩剔透的燈罩,這些時尚又輕奢的元素碰撞在一起,營造出輕松舒適的用餐氛圍。

大理白族自治州100平米以下三居北歐風格裝修效果圖

大理白族自治州100平米以下三居北歐風格裝修效果圖
小戶型室內客廳裝修,正對玄關的客廳增加了一面金屬屏風作為遮擋。顏色上,采用不同灰度的藍色裝飾,也就是莫蘭迪色系,使整體空間調性不張揚,不鮮亮,卻帶有高級感,然后搭配一兩個鮮艷的色塊點綴,讓客廳從沉靜中跳脫,像馬卡龍一般外脆里嫩、俏皮甜美。

大理白族自治州100平米以下三居北歐風格裝修效果圖
小戶型室內客廳裝修,簡潔的白色大理石電視背景內嵌黑色置物柜,既增加收納功能,又能作為一種裝飾。

大理白族自治州100平米以下三居北歐風格裝修效果圖
小戶型室內走廊裝修,客衛面對玄關的一面墻也被打通,嵌入了一個小型魚缸,色彩斑斕的金魚和美觀的水草成為公共空間最亮眼的存在。

大理白族自治州100平米以下三居北歐風格裝修效果圖
小戶型室內主臥裝修,淡藍、淡粉、奶咖色組成的臥室像馬卡龍夾層中的奶油餡料絲滑溫潤。吊燈、床頭背景、臺燈的強烈金色線條更將空間的氣質與靈魂串聯在一起。半封閉式衣柜設計通透性強,也同時兼具收納和展示作用,方便主人挑選拿取常用衣物。

大理白族自治州100平米以下三居北歐風格裝修效果圖
小戶型室內男孩房裝修,櫻花粉、薄荷綠、奶油黃、淡湖藍、丁香紫...當馬卡龍的甜蜜碰上兒童的天真,滿滿都是生命力與夢幻感,這個家的兒童房便借鑒輕柔又豐富的馬卡龍色彩,大膽用撞色為孩子塑造純凈有格調的成長空間。

大理白族自治州100平米以下三居北歐風格裝修效果圖
小戶型室內女孩房裝修,布局上,男孩房、女孩房均采用多功能一體化設計,在有限的空間里,將孩子的閱讀、休息、娛樂、收納需求一網打盡。
柳州101-200平米北歐風格保利國際室內設計效果圖
北歐風格101-200平米三居室
廣州100平米以下北歐風格室內設計效果圖
北歐風格100平米以下三居室
廣州101-200平米北歐風格新鷗鵬教育小鎮裝修設計效果圖
北歐風格101-200平米三居室
廣州101-200平米北歐風格天雋峰室內設計效果圖
北歐風格101-200平米四居室
佛山101-200平米北歐風格裝修設計案例
北歐風格101-200平米三居室
廣州101-200平米北歐風格家裝設計效果圖
北歐風格101-200平米三居室
佛山101-200平米北歐風格綠地香樹花城室內裝修設計案例
北歐風格101-200平米四居室
佛山301平米以上北歐風格室內設計效果圖
北歐風格301平米以上別墅